Skip to main content
Jeff & Grace Safrin
FOR SALE
$69,000

7838 N Walker Road
New Carlisle, IN 46552

Single Family
Residential
3
Beds
1
Baths
0.91
Acre Lot
Courtesy: Listing Leaders Stately, LLC
Home> Indiana> New Carlisle> 46552
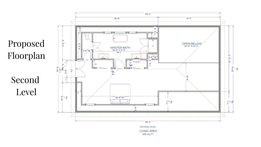
Endless potential at Hudson Lake! Located within walking distance to the South Shore Train Station, Hudson Lake, and the popular Hudson Lake Tavern, this property includes five spacious lots totaling nearly 40,000 sq ft. With approximately 2,609 sq ft of living space, the home is gutted and ready to be finished, offering an open canvas for your vision. The proposed floorplan features an open-concept layout, two large bedrooms, a spacious primary bath, and a huge owner's suite upstairs with his & hers closets and a private bath. Recent improvements include new LVL and steel support columns, framed shed dormers, framed windows on the upper level, repaired floor joists, and septic tank repairs (pump still needed). Land has been cleared and offers ample space to spread out and perhaps add a pole barn and fence. With potential as a primary residence, workshop, short-term rental, or Airbnb, this home offers flexibility to match your vision. Centrally located between University of Notre Dame, South Bend, Lake Michigan, and Chicago, and just minutes from downtown charming New Carlisle, this is a prime location with endless upside. Schedule your showing before this great investment property is gone!
830550
Single Family, Other
3
La Porte
1 Full
1950
0.91 Acres
Septic Tank
True https://photos.prod.cirrussystem.net/1342/6877f581b4f4bd393684b330f7ba8a71/616453209.jpeg 830550
Loading...
Data Source: Constellation Data Labs®
The scores below measure the walkability of the address, access to public transit of the area and the convenience of using a bike on a scale of 1-100

Walk Score

Transit Score

Bike Score

Loading...
Data Provided by ATTOM Data®
Courtesy: Listing Leaders Stately, LLC
Greater NW Indiana Assoc of Realtors logo
The data relating to real estate for sale on this website comes in part from the Internet Data Exchange Program of the Multiple Listing Service of the Greater Northwest Indiana Association of REALTORS, Inc. Real estate listings held by brokerage firms other than the owner of this site are marked with the Broker Reciprocity logo or the Broker Reciprocity thumbnail logo (a little black house) and detailed information about them includes the name of the listing brokers. The broker providing these data believes them to be correct, but advises interested parties to confirm them before relying on them in a purchase decision. Copyright 2025 MuItiple Listing Service of the Greater Northwest Indiana Association of REALTORS, Inc. All rights reserved
This content last refreshed on 12/13/2025 2:07 PM CST. Some properties which appear for sale on this web site may subsequently have sold or may no longer be available.
Information is deemed reliable but is not guaranteed.