Skip to main content
Jeff & Grace Safrin
FOR SALE
$662,094

1662 Forest Ridge Drive
Valparaiso, IN 46385

Single Family
Residential
3
Beds
2
Baths
3,179
Sq. Ft.
0.181
Acre Lot
Courtesy: Blue Ridge Realty Group
Home> Indiana> Valparaiso> 46385
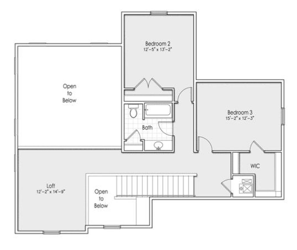
**PROPOSED CONSTRUCTION, PHOTOS ARE REPRESENTATION OF A PREVIOUSLY BUILT HOME** Introducing the Reineer, located in The Brooks at Vale Park. This newly designed modern Colorado-inspired 2 story home boasts modern and classic charm in a perfect balance. Through the main entrance, you're greeted with an expansive dining room that opens right up to a massive great room and kitchen area. Off the kitchen is a breakfast nook and access to a main floor primary bedroom with an ensuite bathroom and walk-in closet. Laundry and a powder room are also located on the main level just off the entryway from the garage. Upstairs is spacious loft space that overlooks the great room, followed by 2 additional bedrooms and the 2nd full bathroom. All this sits on a full walk-out basement with a lower level deck and is roughed in for additional living space if desired. Notable high quality standard features include: 2x6 exterior construction, Full LP Smartside Exterior, Medallion Silverline soft-close cabinets throughout, 8ft tall garage doors, tankless water heater, luxury vinyl plank flooring, Cedar ceilings inside covered porch, Trex decking, SmartHome package that includes Nest doorbell and Ecobee thermostat and so many more! Inquire with your agent about limited time builder incentives currently being offered.
810168
Single Family, Other
3
Porter
2 Full
2025
0.181 Acres
Public Water
Public Sewer
True https://photos.prod.cirrussystem.net/1342/0d17fad505480978d7f0b6f726b9779e/522269172.jpeg 810168
Loading...
Data Source: Constellation Data Labs®
The scores below measure the walkability of the address, access to public transit of the area and the convenience of using a bike on a scale of 1-100

Walk Score

Transit Score

Bike Score

Loading...
Data Provided by ATTOM Data®
Courtesy: Blue Ridge Realty Group
Greater NW Indiana Assoc of Realtors logo
The data relating to real estate for sale on this website comes in part from the Internet Data Exchange Program of the Multiple Listing Service of the Greater Northwest Indiana Association of REALTORS, Inc. Real estate listings held by brokerage firms other than the owner of this site are marked with the Broker Reciprocity logo or the Broker Reciprocity thumbnail logo (a little black house) and detailed information about them includes the name of the listing brokers. The broker providing these data believes them to be correct, but advises interested parties to confirm them before relying on them in a purchase decision. Copyright 2025 MuItiple Listing Service of the Greater Northwest Indiana Association of REALTORS, Inc. All rights reserved
This content last refreshed on 11/16/2025 2:05 AM CST. Some properties which appear for sale on this web site may subsequently have sold or may no longer be available.
Information is deemed reliable but is not guaranteed.